El encargo.
Una empresa contratista para empresas de telecomunicaciones, en pleno crecimiento.
Deciden que ya es tiempo de formalizar los procesos y los espacios de trabajo, para estabilizar su crecimiento.
El objetivo para que no pierdan productividad, fue concretar una obra de arquitectura, compatible con el trabajo diario de la empresa en simultaneo.
El lugar.
Un predio de siete lotes contiguos con salida a dos calles, Libertad y Santa Cruz, que compraron a una empresa de residuos que se mudaba de municipio.
En el momento que los compraron utilizaron los galpones en el estado de conservacion que el anterior dueño los tenia y de la manera que la anterior empresa los usaba. Pero no les resultaba apropiado en la dinámica diaria.
La Idea.
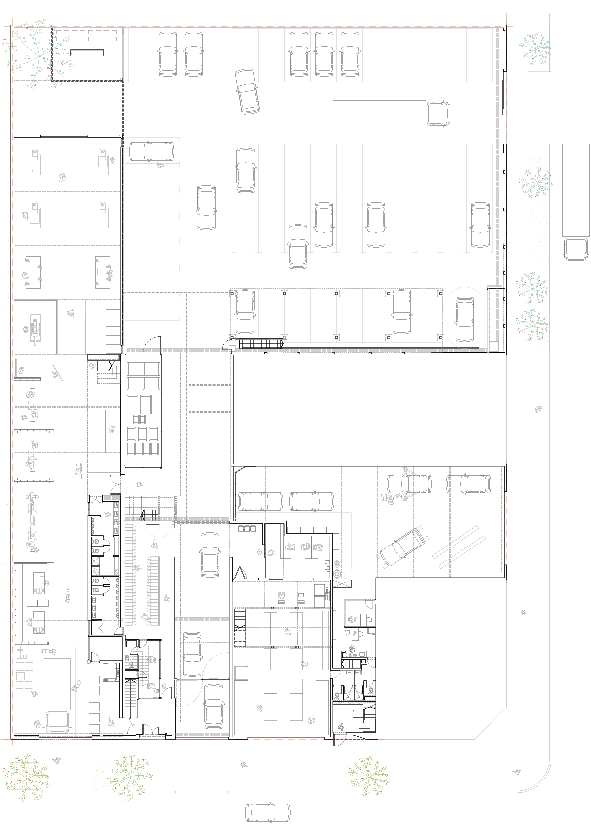
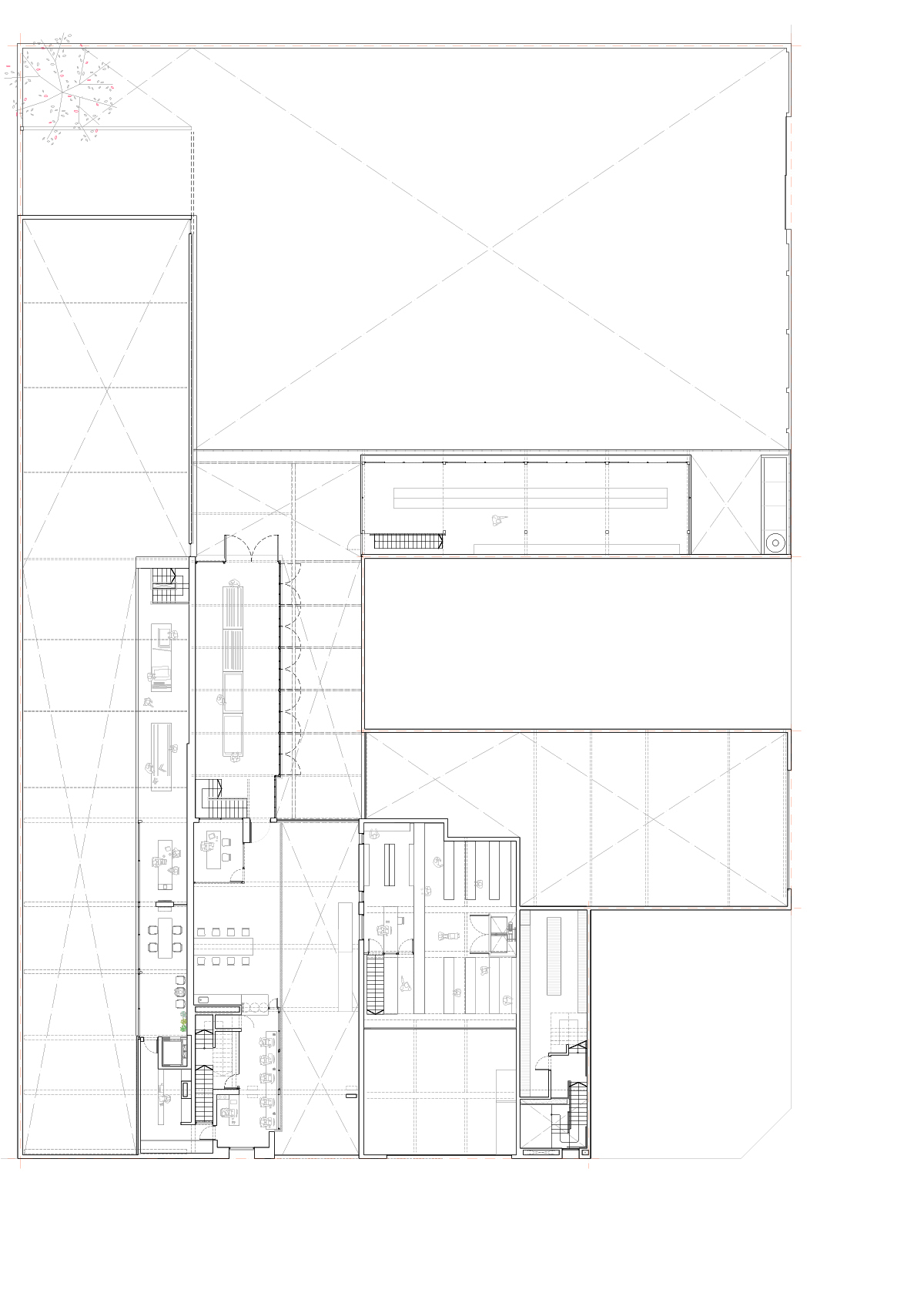
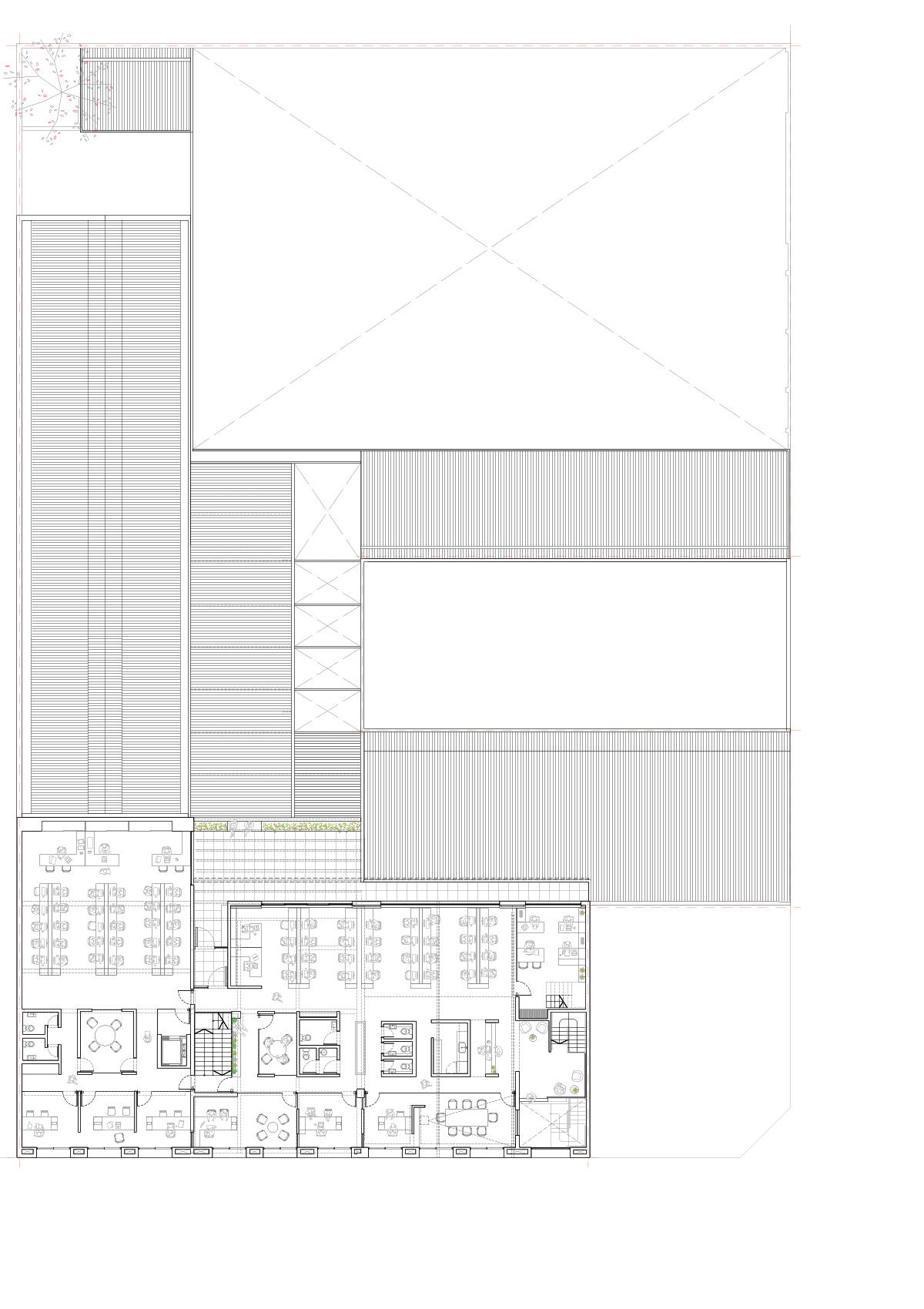
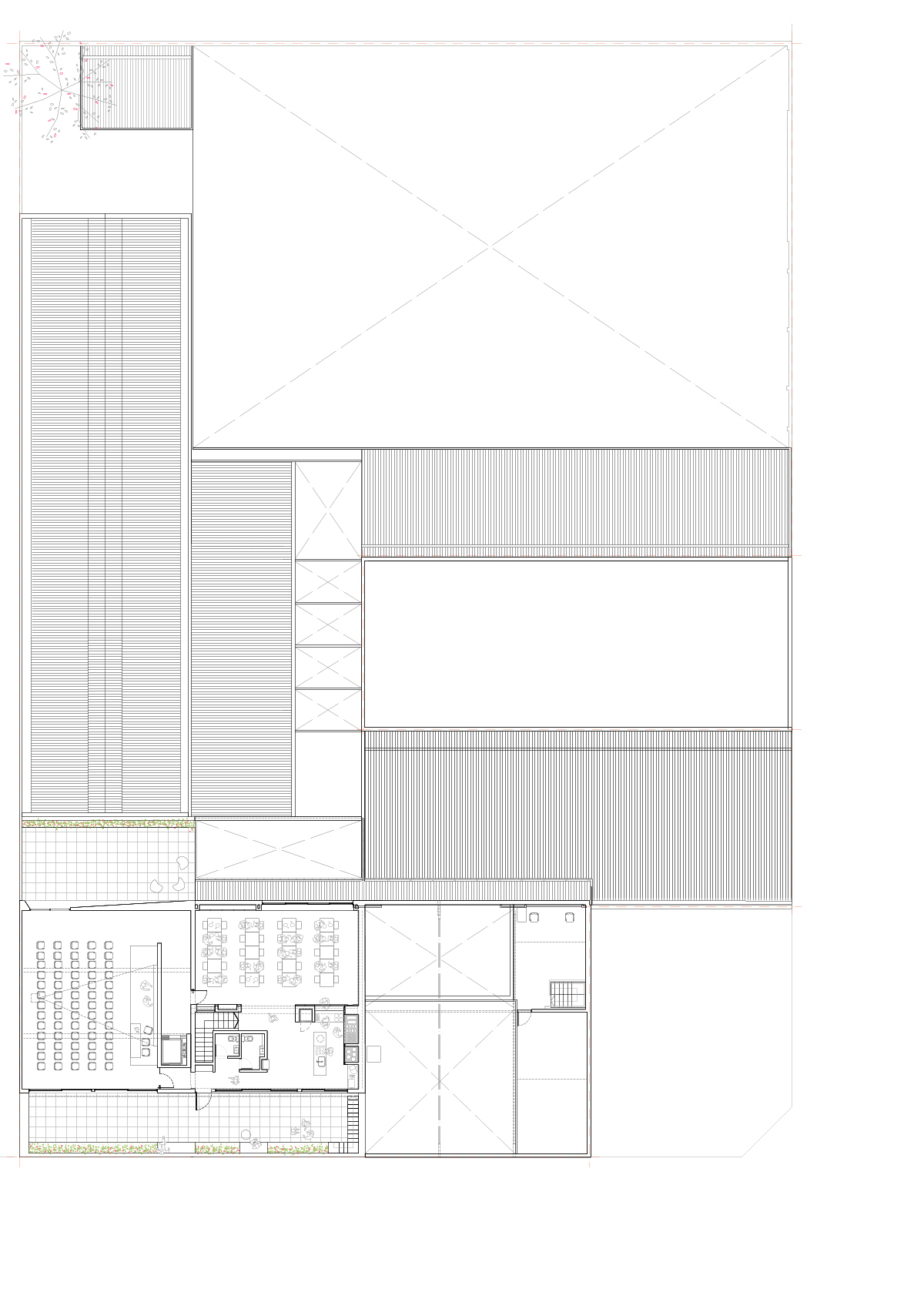
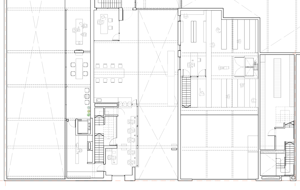
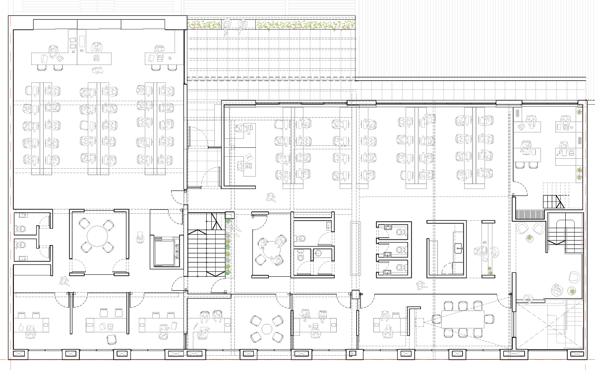
Desarrollamos el proyecto a partir de dividir dos grandes grupos de trabajo: la planta de produccion y la planta de coordinacion.
Planta de produccion
Sobre una superficie de 2700m2
Sectorizamos marcadamente con limites visuales y formales los sectores que componen este grupo. Compuesto por una herrería, un pañol, un taller mecánico, un sector de control de ingresos y egresos, el estacionamiento de los vehiculos y los accesos.
El objetivo es que la planta trabaje coordinadamente y pueda abrirse o cerrarse con independencia. Que funcione para la supervision de procesos diarios.
Planta de coordinacion y gerencias.
Sobre una superficie de 800m2
Sectorizamos con limites visuales permeables el sector de mesas de trabajo, la administracion, la sala de reuniones y las gerencias.
Para eso nucleamos los sectores humedos en el centro de la planta y sus pasos, se transformaron en el tamiz entre un subsectores.
Exteriormente, el frente de la empresa tiene un zócalo de cerámica gris, que toma la altura de los portones, el basamento.
Posando sobre éste, continua una caja blanca, con ventanas profundas, casi como oradaciones a la masa.


























Año 2013-2017
Locación: José león Suárez, CABA
Tipo: Obra construida
Equipo de Proyecto: Francisco Drault, Leticia Macedonio, Emiliana Alvarez Rossi, Sofia Roatta, Pablo Martinez, Carolina Maciel
Maqueta: Emiliana Alvarez Rossi
Dirección de Obra: Francisco Drault, Pablo Martinez
Fotografias: Lucas Sarmiento